
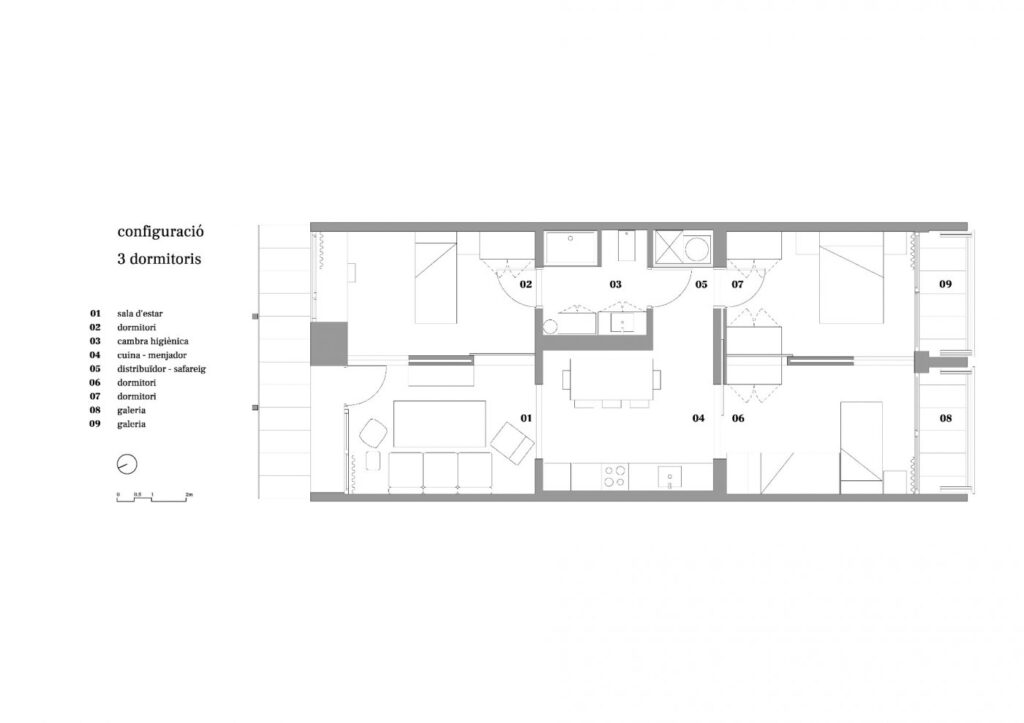
Hay dos tipos de promociones de obra nueva: las que salieron como setas en el boom, con planos calcados y hechas para obtener el máximo beneficio en el menor plazo; y por otro lado están las que se hacen pensando en la calidad de vida de sus habitantes y en el largo plazo, como esta vivienda. Aquí no hay ningún elemento al azar, todo busca la máxima calidad en cuanto a eficiencia, sostenibilidad, ventilación, luminosidad… Y para disfrutar de tu hogar muchos más años, puedes configurar los espacios según tus necesidades puntuales.
Todo está pensado, y muy bien pensado.

































